









CHUV Pharmacie centrale BH04
Edicule technique BH06 avec exutoires cytostatiques BH09, Rehaussement d’un ascenseur REGA en toiture BH09
Maître d'ouvrage
CHUV – CIT-s
Lieu
1000 Lausanne
Type de mandat
Direction du Groupement de mandataires
Date
2018 - 2022
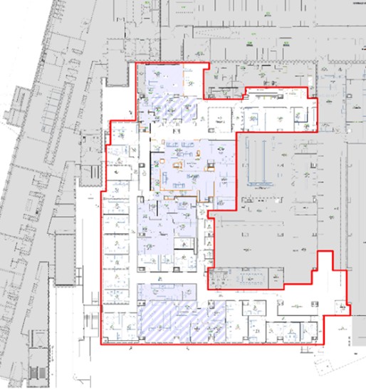
La Pharmacie centrale occupe 2540 m2 de SPB. L’aire de production dédiée à la fabrication des produits pharma-ceutiques cytotoxiques est augmentée avec la réalisation de 2 nouvelles salles blanches. L’extension de 333 m2 amène à une réflexion globale sur la réorganisation complète du service selon les plans et le cahier d’URS. Une procédure de type GMP en vue de l’homologation par Swissmedic est appliquée. Le mandat comprend la coordination technique et la responsabilité de la qualification des installations et de la qualification opérationnelle (IQ-OQ), et en appui au maître d’ouvrage la qualification des performances (PQ en procédure GMP). Les travaux de rénovation et de transformation, de mise en conformité distribution, conditionnement, sas des
salles blanches) et l’extension du service sont réalisés par phases successives en cours d’exploitation.
La création d’une superstructure technique des monoblocs de ventilation cytotoxique de 150 m2 en toiture BH06 et la réalisation des 8 extracteurs de ventilation cytotoxique intégrés au rechaussement d’un ascenseur REGA en toiture BH09 complètent l’ensemble des équipements techniques nécessaires au fonctionnement de la Pharmacie centrale.
Le mandat de Direction Générale de projet et de réalisation a été exécuté en coordination technique avec le Groupement de mandataires composé avec les ingénieurs spécialisés CVCS-E.
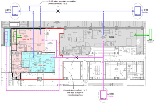
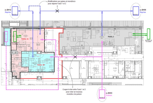
Etudes complémentaires de rénovation – transformation des Salles blanches FASOL 1 & 2 BH04
Elaboration de variantes de projet et d’intervention par étapage
La haute complexité générale et technique d’assainissement des salles blanches de FASOL 1 et 2 nécessite la mise en œuvre d’une approche méthodologique appropriée par phases d’approfondissement des analyses et des études de
4 variantes de projet structurées de la manière suivante:
1. l’analyse des incertitudes et des risques liées à la réalisation ;
2. La définition du concept d’interventions (par secteur et variantes de projet) ;
3. le développement détaillé des principes et des solutions techniques ;
4. le relevé et la mise à jour des plans des installations techniques existantes ;
5. la mise en œuvre d’une gestion de projet optimale (coût, délai, processus qualité)
Les incertitudes et des risques des différentes modifications d’installations envisagées ont été analysés et étudiés pour évaluer l’orientation de projet la plus optimale qui a été présenté dans un rapport de synthèse et de recommandations au maître d’ouvrage. Un tableau synoptique SWOT permet d’avoir une vue d’ensemble des options possibles et des risques encourus pour prendre les décisions nécessaires à la bonne définition des limites du projet et de sa réalisation en lien avec les études technique des mandataires CVCS-E. L’ensemble du processus d’état des lieux, d’analyse des infrastructures techniques, des aspects des utilisateurs et réglementaires, ainsi que des propositions de variantes de solution a été présenté dans un rapport complet avec les recommandations utiles au maître d’ouvrage, les coûts des travaux et le planning intentionnel de réalisation des travaux en cours d’exploitation.
Subdivisé par secteur, le principe d’application du concept général et technique de transformation et de rénovation de FASOL 1 et 2 est détaillé selon le schéma d’intervention suivant :