



HFR Salles de réveil adulte et pédiatrique
Transformation du niveau B des Bâtiments 01 et 14
Maître d'ouvrage
HFR hôpital fribourgeois
Lieu
1752 Villars-sur-Glâne / Fribourg
Type de mandat
Bureau pilote de projet et de réalisation
Date
2022 - 2024
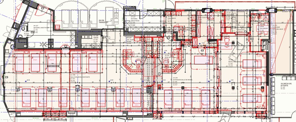
La transformation de la Salle de réveil adulte du bâtiment 01 avec son agrandissement dans le corps du bâtiment 14 adjacent a été réalisée pour répondre aux exigences actuelles SSMI et aux besoins de mise en conformité techniques des équipements médicaux.
La réalisation d’une salle de réveil pédiatrique dans le corps de bâtiment 14 vient également compléter le programme en offrant une organisation flexible d’usage des 3 salles. La ventilation des nouvelles salles est produite par un monobloc dédié installé dans la superstructure de toiture au niveau D. La réalisation a été exécutée en cours d’exploitation du service et des blocs opératoires voisin ; elle a nécessité 3 étapes principales consécutives.