






Hôpital Daler Bloc Opératoire
Réalisation de 4 salles d’opération et de d’un édicule technique
Maître d'ouvrage
Fondation de l’hôpital Jules Daler
Lieu
1700 Fribourg
Type de mandat
Direction de coordinateur général
Date
2018 - 2021
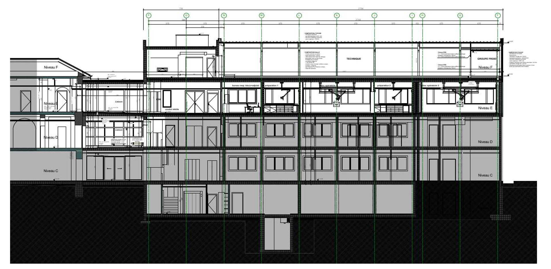
Le projet comprend la modernisation du 4 salles du bloc opératoire au niveau E des bâtiments 2 (1916) et 1.1 (1976) et les travaux liés de mise en conformité technique. Le bâtiment historique n°2 est recensé en qualité moyenne (Valeur C) dans un périmètre environnant de catégorie 1.
Un nouvel édicule technique en toiture du bloc OP du bâtiment de 1976 et une liaison avec le bâtiment historique de 1916 ont été réalisés avec la transformation intérieure partielle du bâtiment historique pour une salle de rencontre des familles du service de maternité et une 6ème salle du bloc opératoire.
Les travaux ont été réalisés en étapes avec maintien de l’exploitation des services opératoires et services adjacents en exploitation.
Le projet occupe env. 1’600 m2 SPB des niveaux D-E-F et comprend :
- Transformation intérieure du bâtiment 2 – 1916 Les travaux ne modifient pas la structure intérieure du bâtiment historique recensé en Valeur C. Une nouvelle répartition des locaux est faite pour optimiser le fonctionnement du service.
- Niveau D: Rénovation des vestiaires avec extension du vestiaire homme et transfert du vestiaire femme au niveau E.
- Niveau E: Réalisation du vestiaire femme. Rénovation des locaux annexes en lien avec les salles du bloc opératoire.
- Modernisation du bloc opératoire et des locaux annexes du bâtiment 1.2
- Niveau E: Réalisation des travaux de mise en conformité et de modernisation technique des salles du bloc opératoire du bâtiment construire en 1976.
- Réalisation de l’édicule technique du bâtiment 1.2 – 1976
- Niveau F: L’intégration de l’édicule respecte la trame du bâtiment existent. La structure porteuse est métallique et le volume comprend installations techniques de la modernisation du bloc opératoire du niveau E.
- Agrandissements de la liaison entre le bâti de 1916 et 1976 La réalisation d’une 6ème salle d’opération nécessite une extension du niveau E au sud de la passerelle de liaison existante. Cet agrandissement est créé sur les niveaux D et E. Pour garantir son intégration, il est revêtu d’une façade ventilée avec une finition en verre identique à celle de l’extension de l’entrée et de la cafétéria réalisée en 2013 au niveau C. Les surfaces créées au niveau D seront dévolues au service de la maternité.
- Travaux complémentaires De plus, des travaux complexes d’assainissement technique des colonnes de chutes des eaux usées du bâtiment et de réalisation d’un tunnel de liaison technique entre les bâtiments ont également été réalisés en cours d’exploitation de l’hôpital et en parallèle au chantier du bloc opératoire.